| Realestatedevanahalli@gmail.com |
Find Residential & Commercial Property in Bangalore Karnataka. DEVANAHALLI PROPERTYS is providing Karnataka Bangalore Properties Sell Rent Classifieds database . Contact with us for instant Buy sell .
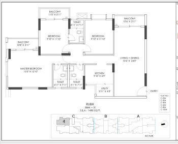
Devanahalli, Bangalore
Bedroom : 3 BHK
Build up Area : 10000 Sq.ft.
Property Type : Flats & Apartments
Call for Price
Devanahalli, Bangalore
Build up Area : 2300 Sq.ft.
Property Type : Office Space
Call for Price
Devanahalli, Bangalore
Super Area : 4000 Sq.ft.
Property Type : Business Center
2.40 Lac
Property by Category
Locations in Bangalore
Property by City
Hi! Simply click below and type your query.
Our experts will reply you very soon.